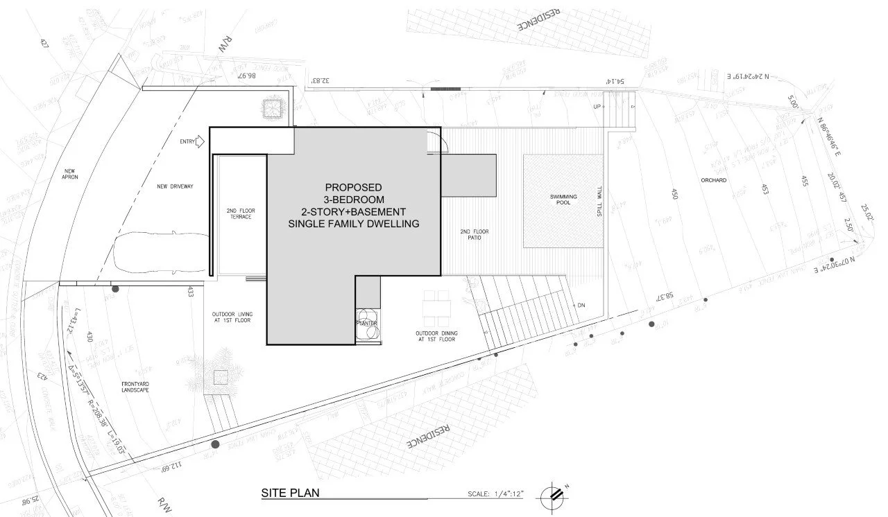
View lot with previous structure on site including access to utilities. Estimated build is over 2,000 square feet including 3 beds and 3 baths. Opportunity to build your dream home in the family-friendly, vibrant Mt. Washington neighborhood, with a short distance to coffee shops, restaurants and markets. The location offers easy access to the 110 and 5 freeways. With more than 60 feet of street frontage, this upslope lot opens itself up to astonishing views of Elysian Park, the LA River, and Downtown LA.
Beneficial construction conditions include a fully improved street, gas line in the lot, available sewer and water connections, power and internet lines at less than 50' distance; excellent soils suitable for conventional foundation methods with approved soils report available; topography and boundary survey recently done. Reports available upon request.
Lot is sold with the schematic design for a 2,070 sf 3-bedroom, 3-bathroom single-family dwelling featuring a two-car garage at street level. Dining, living and master bedroom open up to the flickering lights of downtown skyscrapers and the fireworks preceding a Dodger Stadium event. The possibility of adding an 800 sf ADU is presented as an additional option. Both potential builds have been drafted based on communication with the LADBS planning department. The architect who designed the project is also available to carry the project forward to completion if desired.
MLS# 26671075
4,147 sq ft lot (aoproximate)
$225,000

